
Meltwater , Edmonton
The Burton – 2000 sq. ft. of Modern Living
The Burton offers a perfect blend of comfort and functionality with its thoughtfully designed 2000 sq. ft. layout.
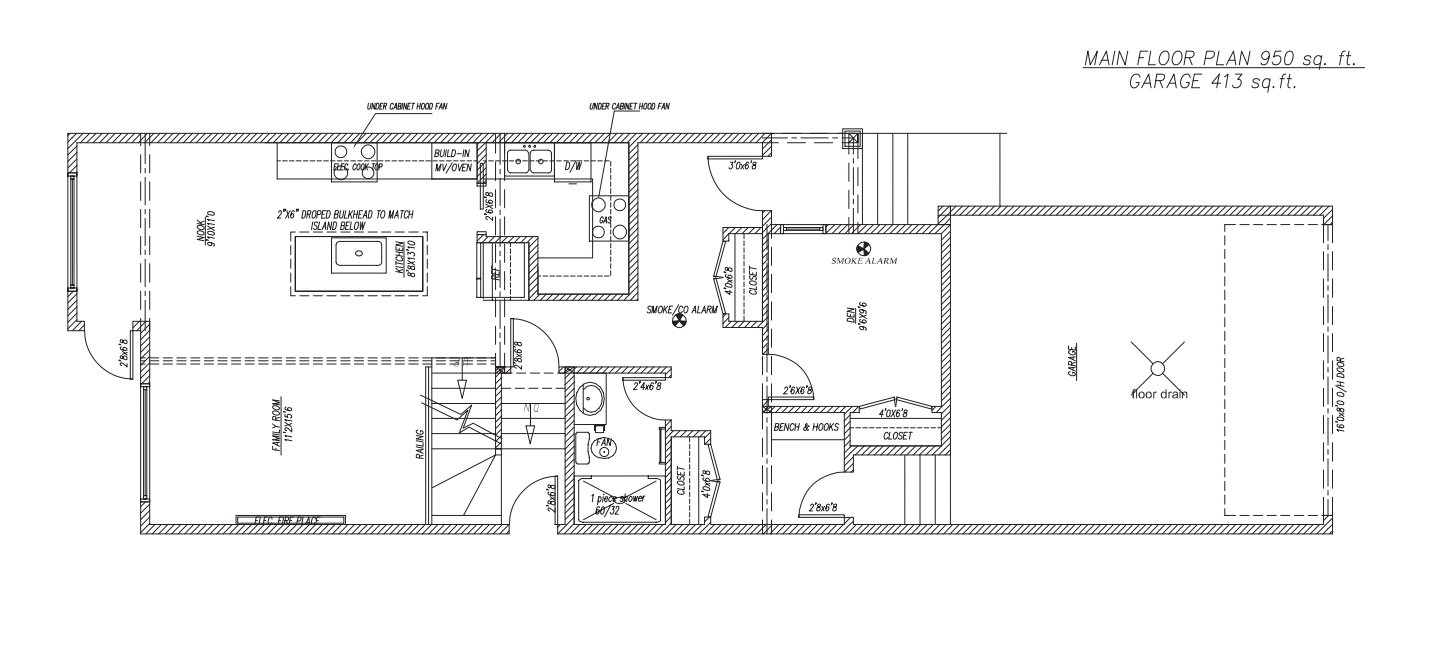
On the main floor, you’ll find a convenient spice kitchen, a versatile den, and a full bath. The open-to-below concept creates an airy and inviting atmosphere, filling the home with natural light.
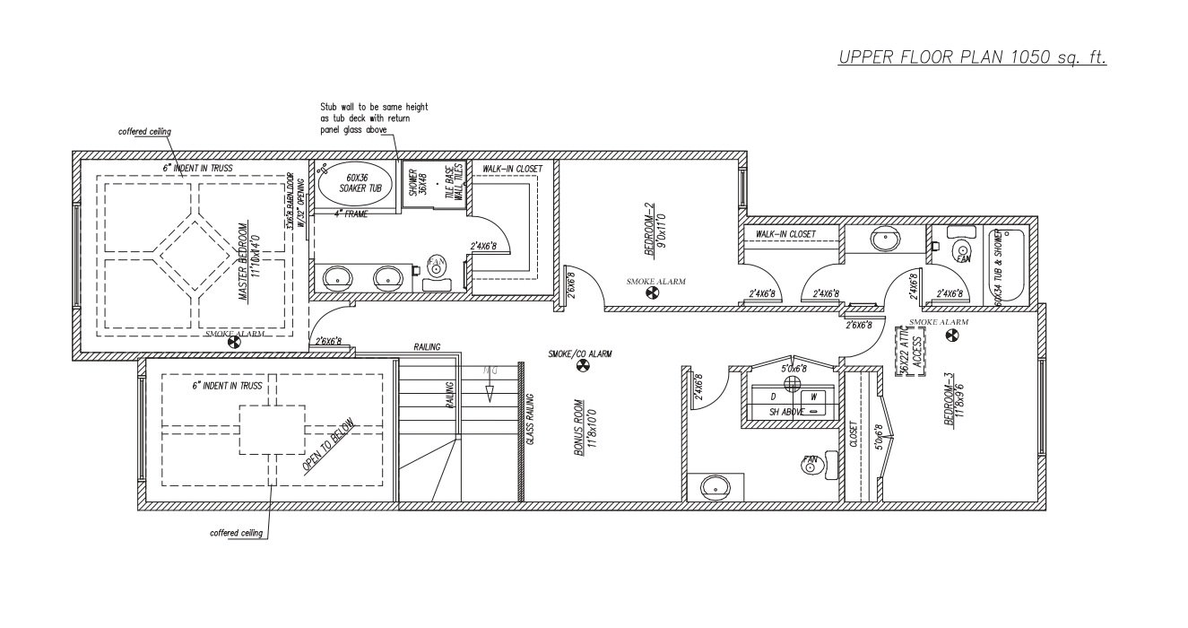
Upstairs, the master suite provides a private retreat complete with a spacious ensuite. Two additional bedrooms share a practical Jack and Jill bathroom, while a separate powder room adds extra convenience for family and guests.
The Burton is ideal for modern families seeking style, space, and functionality.
We’re not new to this. For over three decades, we’ve built lasting homes and even longer-lasting relationships in Edmonton, Beaumont, and Leduc.
Built on Years of Trust
We don’t just build in communities—we help shape them. Every Prominent neighborhood is thoughtfully chosen for families to thrive.
Community-First Approach

We’re deeply rooted in Edmonton Region. We live where we build, and it shows in our commitment to local families.
Personal Connection, Local Focus
Our flexible floorplans and finishing options put your vision first. We don’t just build homes—we build your home, your way.
Custom Options
We walk with you—from first consultation to possession and beyond. Clear updates. Honest timelines. No guesswork.
Transparent Proces
Where others focus on speed, we focus on excellence. Every Prominent home reflects quality workmanship down to the last detail.



